Biệt thự 3 tầng 4 phòng ngủ chữ L hiện đại không lỗi thời
Nội dung
Biệt thự 3 tầng 4 phòng ngủ chữ L được thiết kế theo phong cách hiện đại tối giản đầy sự tinh tế. Mặt tiền sử dụng các hình khối đơn giản và mạnh mẽ kết hợp cùng tone màu trung tính rất dễ chịu. Ngôi nhà sẽ bền vững theo thời gian mà không bao giờ bị lỗi thời như những phong cách khác.
Biệt thự phố 3 tầng tối giản mà tinh tế vô cùng
Các mảng tường được bố trí hợp lý với mảng tường bo cong ở tầng 2 tạo cảm giác hiện đại và cân đối, uyển chuyển. Hình khối được bố trí theo kiểu nhà chữ L rất thoáng mát và mạnh mẽ. Chất liệu sử dụng kết hợp giữa bê tông cốt thép, ốp đá mặt tiền và cả chất liệu gỗ ốp, kính ban công cực hài hòa tạo nên một ngôi nhà hiện đại mà gần gũi ngay giữa phố.

Biệt thự 3 tầng 4 phòng ngủ chữ L đầy ánh sáng và không gian mở
Có thể thấy biệt thự 3 tầng được thiết kế rất chú trọng vào ánh sáng và không gian mở để giúp gia chủ có cuộc sống thật thoáng đãng. Hệ kính ban công chạy dọc quanh nhà cùng ban công rộng giúp ngôi nhà trở nên rất hiện đại. Kiểu nhà chữ L cũng giúp cho ngôi nhà có không gian trống cho nhu cầu trồng cây, sân vườn, làm gara của gia chủ.


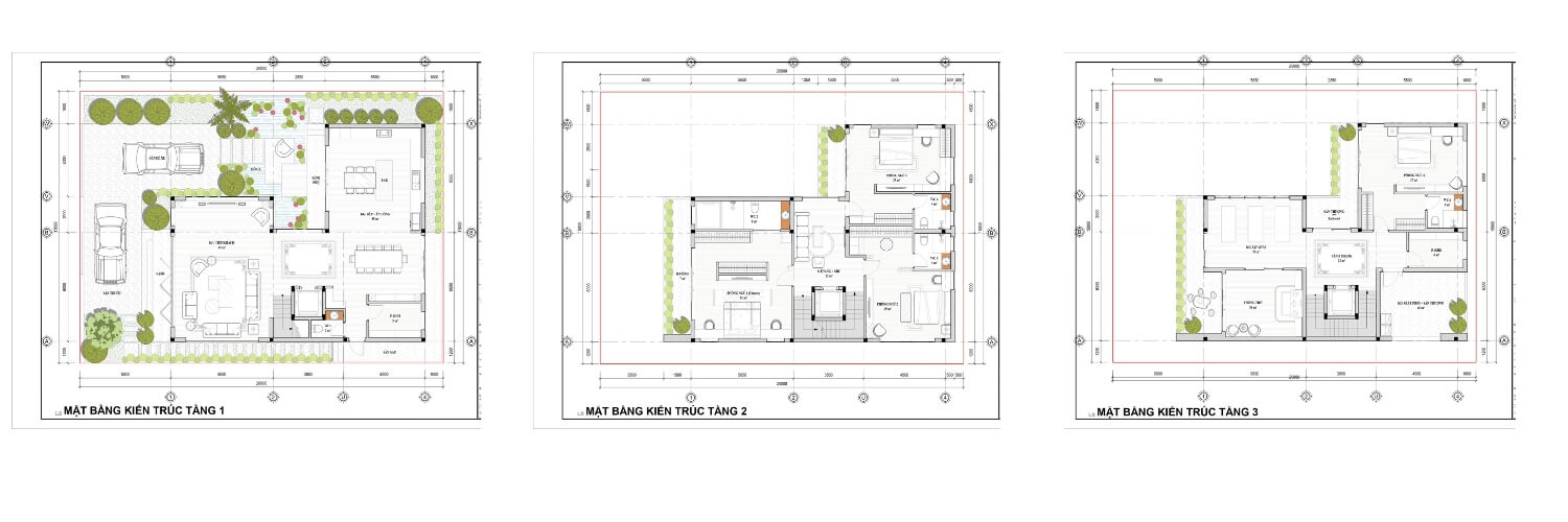
Bản vẽ thiết kế biệt thự 3 tầng chữ L siêu thu hút
Ngôi nhà được thiết kế với 4 phòng ngủ khác nhau trong đó 1 phòng ở tầng 1 và 3 phòng ở tầng 2. Không gian sống cực rộng rãi trên diện tích 8x13m.
- Tầng 1: Sân xe, sảnh chính, phòng khách, phòng bếp, WC
- Tầng 2: 3 phòng ngủ, phòng sinh hoạt chung, WC
- Tầng 3: 1 phòng ngủ, phòng thờ, sân thượng, khu giặc phơi

Biệt thự 3 tầng hiện đại 120m2 mái Nhật thời thượng và thanh lịch
Không gian sống hiện đại và thoáng đãng bên trong biệt thự
Kiểu nhà chữ L giúp cho gia chủ bố trí nội thất thoải mái hơn vì có nhiều không gian cho trang trí. Không gian sống của nhà 3 tầng được sử dụng tone màu trung tính cực kỳ tinh tế và hiện đại phù hợp cho mọi độ tuổi gia chủ.










Thông tin chi tiết dự án biệt thự 3 tầng 4 phòng ngủ
- Chủ đầu tư: Anh Gia Huy
- Địa chỉ: Thái Bình (cũ)
- Diện tích: 8x13m
- Thiết kế: Công ty kiến trúc KASAI
Biệt thự 3 tầng 3 phòng ngủ kiểu nhà chữ L vừa thoáng đãng lại hiện đại tinh tế là một lựa chọn an toàn cho những gia chủ muốn không gian sống bền vững theo thời gian. Nếu yêu thích ngôi nhà này đừng chần chừ liên hệ KASAI tư vấn nhé!
Thông tin liên hệ và báo giá
- Liên hệ: 0931393270 – 0972903570
- FACEBOOK: https://www.facebook.com/Ceoluuhonglam/
- FANFAGE: https://www.facebook.com/xaydungkasai
- WEBSITE: https://kasai.com.vn/ – https://thietkenhakasai.com/
- ZALO: 0931393270 – 0972903570
Địa chỉ chi nhánh:
- Đà Nẵng: 62 Xuân Thủy – Cẩm Lệ – Đà Nẵng
- Hà Nội CN1: Số 80 đường Đa Phúc, xã Đa Phúc, thành phố Hà Nội
- Hà Nội CN2: Tòa nhà BRC, số 5/76 Trần Thái Tông, phường Nghĩa Đô, Hà Nội
- Hà Nội CN3: Tầng 4, Tháp B1 Roman Plaza, Tố Hữu, phường Xuân Phương, Hà Nội
- Hải Phòng: 16 lô 3B KĐTM Lê Hồng Phong, phường Ngô Quyền, TP. Hải Phòng
- Nghệ An CN1: 23 Nguyễn Phong Sắc, phường Trường Vinh, TP. Vinh, tỉnh Nghệ An
- Nghệ An CN2: 42 Phan Đình Phùng, phường Thành Vinh, TP. Vinh, tỉnh Nghệ An
- Hà Tĩnh CN1: Tầng 6 – Bình Thủy Building, 24A đường Phan Đình Phùng, phường Thành Sen, TP. Hà Tĩnh
- Hà Tĩnh CN2: 570 Đ. Lê Đại Hành, phường Sông Trí, TX. Kỳ Anh, Hà Tĩnh
- Quảng Trị (trước thuộc Quảng Bình): 136 Lý Thường Kiệt, phường Đồng Hới, TP. Đồng Hới, tỉnh Quảng Trị
- Hồ Chí Minh CN1: 142 Võ Văn Tần, phường Xuân Hòa, TP. Hồ Chí Minh
- Hồ Chí Minh CN2: Tầng 9 – 85 Cách Mạng Tháng Tám, phường Bến Thành, TP. Hồ Chí Minh



