Căn hộ 6 tầng tối giản mà đầy sự thu hút
Nội dung
Căn hộ 6 tầng tối giản được thiết kế với phong cách hiện đại, sử dụng đường bo cong nhẹ nhàng nơi ban công và khối lam gỗ tầng 2 , 3 tạo nên cảm giác cực kỳ thu hút. Không cầu kỳ nhưng lại rất khác biệt giữa phố. Nếu muốn một căn hộ tối giản dễ dàng được khách thuê chọn lựa nơi phố đông cùng chiêm ngưỡng ngay mẫu nhà bên dưới nhé!
Mặt tiền hiện đại với những mảng cong, lam gỗ đầy thu hút
Mặt tiền căn hộ được thiết kế với phong cách hiện đại tối giản. Ngôi nhà rất vuông vức và được xếp theo phương đứng rất cao ráo và thanh thoát. Mặt tiền rất phù hợp với căn hộ cho thuê nơi phố thị tối ưu diện tích nhất.

ĐỂ LẠI THÔNG TIN KIẾN TRÚC SƯ KASAI SẼ GỌI TƯ VẤN NGAY LẬP TỨC
Điểm nhấn của căn hộ chính là đường cong dạng sóng nơi ban công các tầng. Đường cong bố trí kiểu sole ở các ban công tạo nên cảm giác rất nhịp điệu và chuyển động khác biệt. Khi ánh sáng chiếu vào đường cong còn tạo nét đổ bóng rất đẹp mắt.

Lam gỗ trang trí được bố trí ở tầng 2 và 3 tạo điểm nhấn theo trục dọc của ngôi nhà. Lam gỗ giúp công trình trở nên cao lớn hơn và nổi bật trên lớp nền sơn xám.
Thiết kế bố cục cực thông minh
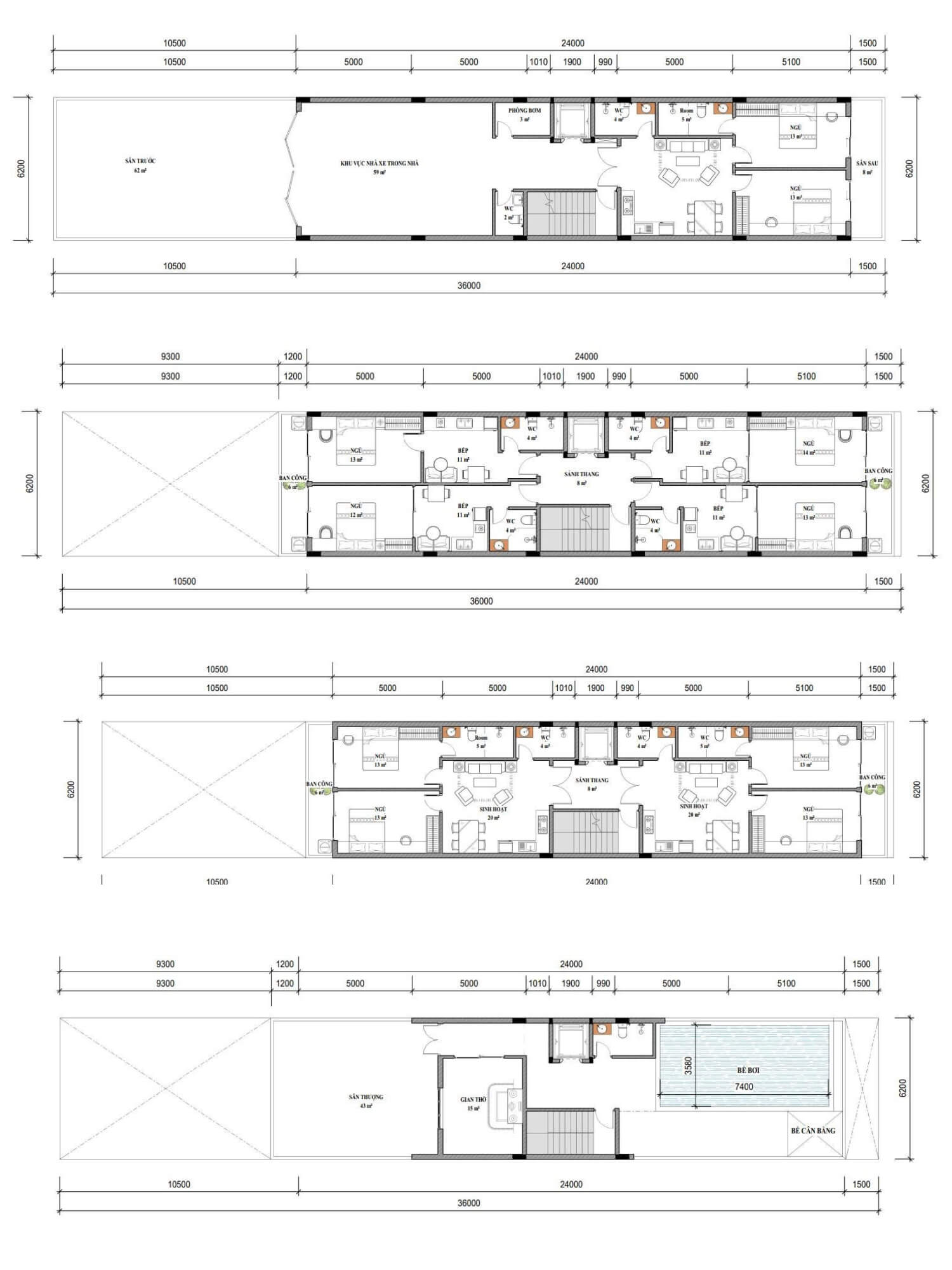
Căn hộ được thiết kế với bố cục rất thông minh. Không gian được bố trí đầy đủ tiện nghi gồm gara, phòng kỹ thuật, các căn hộ cho thuê, và khu vực sinh hoạt của gia chủ.

Không gian sinh hoạt trong các căn hộ vô cùng tiện nghi
Bên trong căn hộ không gian sinh hoạt rất rộng rãi, tách biệt rõ ràng khu vực bếp và nghỉ ngơi giúp cho khách thuê có thể thoải mái sinh sống. Trong các căn hộ bố trí nội thất tối giản, đa năng đảm bảo sự rộng rãi và tiện nghi cũng như tối ưu chi phí cho chủ đầu tư khi thi công.












Thông tin chi tiết dự án căn hộ 6 tầng của KASAI
- Chủ đầu tư: Anh D
- Địa chỉ: Đà Nẵng
- Diện tích: 6,2mx24m
- Thiết kế: Công ty tư vấn thiết kế và xây dựng KASAI
Dự án căn hộ 6 tầng tối giản của KASAI vừa hiện đại lại thu hút giữa phố với không gian sống rộng rãi đầy tiện nghi chắc chắn sẽ giúp chủ đầu tư sinh lời hiệu quả. Nhanh tay liên hệ kiến trúc sư KASAI nếu đang có nhu cầu thiết kế xây căn hộ trọn gói nhé!
Thông tin liên hệ và báo giá
- Liên hệ: 0931393270 – 0972903570
- FACEBOOK: https://www.facebook.com/Ceoluuhonglam/
- FANFAGE: https://www.facebook.com/xaydungkasai
- WEBSITE: https://kasai.com.vn/ – https://thietkenhakasai.com/
- ZALO: 0931393270 – 0972903570
Địa chỉ chi nhánh:
- Đà Nẵng: 62 Xuân Thủy – Cẩm Lệ – Đà Nẵng
- Hà Nội CN1: Số 80 đường Đa Phúc, xã Đa Phúc, thành phố Hà Nội
- Hà Nội CN2: Tòa nhà BRC, số 5/76 Trần Thái Tông, phường Nghĩa Đô, Hà Nội
- Hà Nội CN3: Tầng 4, Tháp B1 Roman Plaza, Tố Hữu, phường Xuân Phương, Hà Nội
- Hải Phòng: 16 lô 3B KĐTM Lê Hồng Phong, phường Ngô Quyền, TP. Hải Phòng
- Nghệ An CN1: 23 Nguyễn Phong Sắc, phường Trường Vinh, TP. Vinh, tỉnh Nghệ An
- Nghệ An CN2: 42 Phan Đình Phùng, phường Thành Vinh, TP. Vinh, tỉnh Nghệ An
- Hà Tĩnh CN1: Tầng 6 – Bình Thủy Building, 24A đường Phan Đình Phùng, phường Thành Sen, TP. Hà Tĩnh
- Hà Tĩnh CN2: 570 Đ. Lê Đại Hành, phường Sông Trí, TX. Kỳ Anh, Hà Tĩnh
- Quảng Trị (trước thuộc Quảng Bình): 136 Lý Thường Kiệt, phường Đồng Hới, TP. Đồng Hới, tỉnh Quảng Trị
- Hồ Chí Minh CN1: 142 Võ Văn Tần, phường Xuân Hòa, TP. Hồ Chí Minh
- Hồ Chí Minh CN2: Tầng 9 – 85 Cách Mạng Tháng Tám, phường Bến Thành, TP. Hồ Chí Minh
- CN Tây Nguyên: 181 Ama Khê, Buôn Ma Thuột, Đắk Lắk


