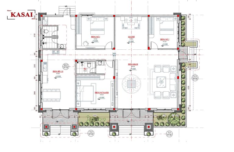
Bản vẽ nhà cấp 4 nông thôn 3 phòng ngủ 1 phòng khách đẹp lạ
Nội dung1 Bản vẽ nhà cấp 4 nông thôn 3 phòng ngủ 1 phòng khách2 Mẫu nhà cấp 4 mái Thái siêu ấn tượng và rộng rãi3 Không gian sống siêu hiện đại trong căn … Đọc tiếp Bản vẽ nhà cấp 4 nông thôn 3 phòng ngủ 1 phòng khách đẹp lạ
Copy và dán URL này vào trang WordPress của bạn để được nhúng vào.
Sao chép đoạn mã này vào trang web của bạn để nhúng