Nội dung
Hình ảnh móng đơn sẽ cho thấy cấu tạo và cách lắp đặt của nó như thế nào. Dựa vào đó mà bạn có thể hiểu rõ hơn về móng đơn cũng như chọn lựa nó cho công trình xây dựng của mình. Cùng xem chi tiết ngay sau đây với thietkenhakasai.com để nắm rõ nhé!

Móng đơn là gì? Hình ảnh móng đơn thường gặp hiện nay
Móng đơn là loại móng được thiết kế để chịu tải trọng từ một cột hoặc một nhóm cột, truyền tải trọng này xuống đất. Móng này thường có hình dạng vuông, chữ nhật hoặc tròn, và được sử dụng rộng rãi trong các công trình xây dựng.



Bản vẽ mặt bằng móng đơn nhà 2 tầng, cấp 4
Cùng xem mặt bằng bản vẽ móng đơn bên dưới của các loại nhà dân thường gặp bên dưới nhé!
Bản vẽ kết cấu móng đơn nhà 2 tầng


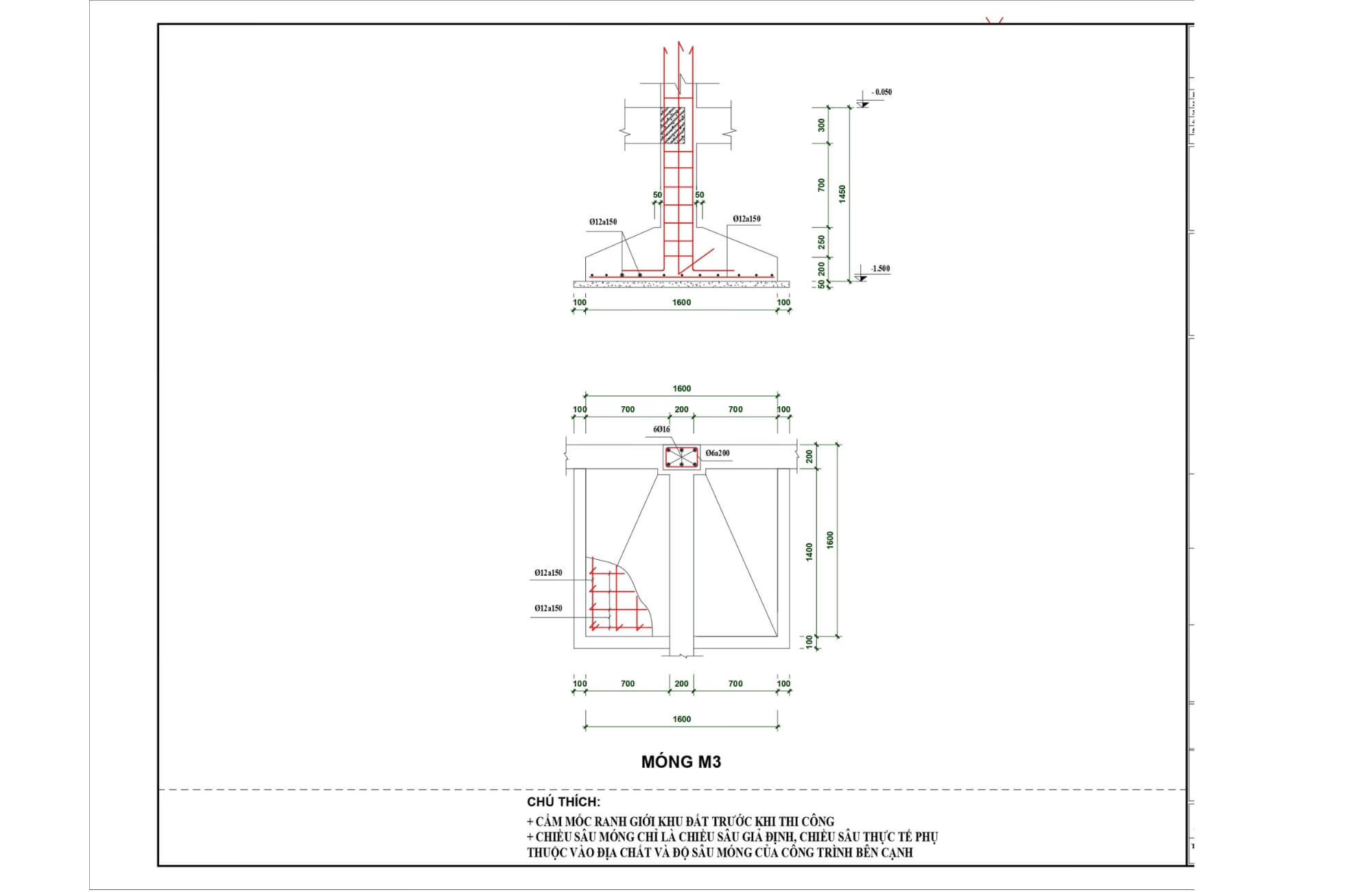
Bản vẽ móng đơn nhà cấp 4



Lợi ích của móng đơn trong xây dựng
Tính ổn định cao
Móng đơn được thiết kế để chịu tải trọng từ cột và truyền tải xuống đất. Điều này đảm bảo tính ổn định cho công trình, đặc biệt là trong những khu vực có địa chất phức tạp. Móng này có khả năng chịu tải cao, giúp giảm thiểu rủi ro lún sụt và đảm bảo tuổi thọ của công trình.
Chi phí thi công thấp
So với các loại móng khác, móng đơn có chi phí thi công thấp hơn do quy trình thi công đơn giản và ít tốn kém hơn. Điều này giúp các bạn tiết kiệm chi phí xây dựng mà vẫn đảm bảo chất lượng và an toàn cho công trình.
Thời gian thi công ngắn
Với quy trình thi công đơn giản, móng đơn có thể được hoàn thành trong thời gian ngắn hơn so với các loại móng khác. Giúp đẩy nhanh thời gian thi công, tốn ít thời gian chờ và nhanh chóng đưa công trình vào giai đoạn khác.
Quy trình thi công móng đơn
Khảo sát và chuẩn bị mặt bằng
Trước khi bắt đầu thi công móng đơn, các bạn cần tiến hành khảo sát địa chất để đánh giá điều kiện đất nền. Công việc này bao gồm kiểm tra độ cứng, độ ẩm và độ bền của đất. Sau khi có kết quả khảo sát, mặt bằng sẽ được chuẩn bị bằng cách san lấp, làm phẳng và nén chặt đất.
Đào hố móng
Dựa trên thiết kế kỹ thuật, hố móng sẽ được đào theo kích thước và hình dạng quy định. Độ sâu của hố móng phụ thuộc vào tải trọng của công trình và điều kiện địa chất tại khu vực thi công.
Lắp đặt cốt thép
Cốt thép được lắp đặt theo thiết kế để tăng cường khả năng chịu lực của móng. Từng thanh thép sẽ được cố định, buộc chặt bởi dây thép để tăng độ bền vững và đảm bảo đúng vị trí.
Đổ bê tông
Sau khi lắp đặt cốt thép, hố móng sẽ được đổ đầy bê tông. Quá trình đổ bê tông cần thực hiện liên tục để tránh hiện tượng nứt nẻ và đảm bảo độ kết dính của bê tông. Sau khi đổ xong, bề mặt bê tông sẽ được làm phẳng và bảo dưỡng đúng cách để đảm bảo chất lượng.

Cấu tạo của móng đơn
Thành phần cấu tạo
Móng đơn bao gồm ba thành phần chính:
- Lớp đáy móng: Đây là lớp tiếp xúc trực tiếp với đất nền, được làm từ bê tông cốt thép để tăng khả năng chịu lực. Lớp này cần đảm bảo độ phẳng và độ cứng để được chịu tải trọng từ cột.
- Cốt thép: Cốt thép được lắp đặt trong lớp đáy móng giúp nâng cao khả năng chịu lực của móng. Các thanh thép được buộc chặt và cố định để đảm bảo vị trí chính xác và độ bền vững.
- Bê tông: Bê tông được đổ vào hố móng và bao phủ cốt thép, tạo thành một khối chắc chắn để truyền tải trọng từ cột xuống đất nền.
Kích thước và hình dạng
Móng đơn có nhiều kích thước và hình dạng khác nhau, phụ thuộc vào tải trọng của công trình và điều kiện địa chất tại khu vực thi công. Hình dạng phổ biến của móng đơn bao gồm hình vuông, chữ nhật và tròn. Kích thước của móng cần được tính toán kỹ lưỡng để đảm bảo khả năng chịu tải và tính ổn định của công trình.

» Tìm hiểu: Móng băng 2 phương là gì? Cấu tạo, bản vẽ chi tiết
Các ứng dụng của móng đơn trong xây dựng
Nhà ở dân dụng: Móng đơn là lựa chọn phổ biến trong xây dựng nhà ở dân dụng nhờ vào tính linh hoạt và chi phí hợp lý. Với khả năng chịu tải tốt, móng đơn đảm bảo tính ổn định cho các công trình nhà ở từ 1 đến 3 tầng.
Công trình công nghiệp nhẹ: Trong các công trình công nghiệp nhẹ như nhà kho, xưởng sản xuất nhỏ, móng này cũng được sử dụng rộng rãi. Khả năng chịu tải của móng phù hợp với yêu cầu của các công trình này, giúp giảm thiểu chi phí và thời gian thi công.
Công trình công cộng: Một số công trình công cộng như trường học, bệnh viện, nhà văn hóa cũng sử dụng móng đơn để đảm bảo tính ổn định và bền vững.
» Bạn có biết: Giằng móng là gì? Chi tiết kích thước bản vẽ
Câu hỏi thường gặp về móng đơn
Chi phí thi công móng đơn như thế nào?
Chi phí thi công móng đơn phụ thuộc vào nhiều yếu tố như kích thước, độ sâu của móng, điều kiện địa chất và giá cả vật liệu xây dựng. Tuy nhiên, móng đơn thường có chi phí thấp hơn so với các loại móng khác nhờ vào quy trình thi công đơn giản và ít tốn kém hơn.
Móng đơn có nhược điểm gì?
Mặc dù loại móng này có nhiều lợi ích, nhưng cũng có một số nhược điểm như khả năng chịu tải hạn chế và không phù hợp với các công trình có tải trọng lớn. Ngoài ra, móng đơn không nên sử dụng trong các khu vực có điều kiện địa chất không ổn định hoặc dễ bị sụt lún.
Với những thông tin trên, hy vọng các bạn đã có cái nhìn rõ hơn về lợi ích, quy trình thi công và ứng dụng của móng đơn trong xây dựng. Nếu có bất kỳ câu hỏi hay thắc mắc nào, đừng ngần ngại liên hệ với KASAI để được giải đáp thêm nhé!
Thông tin liên hệ và báo giá
- Liên hệ: 0931393270 – 0972903570
- FACEBOOK: https://www.facebook.com/Ceoluuhonglam/
- FANFAGE: https://www.facebook.com/xaydungkasai
- WEBSITE: https://kasai.com.vn/ – https://thietkenhakasai.com/
- ZALO: 0931393270 – 0972903570
Địa chỉ chi nhánh:
- Đà Nẵng: 62 Xuân Thủy – Cẩm Lệ – Đà Nẵng
- Hà Nội CN1: Số 80 đường Đa Phúc, xã Đa Phúc, thành phố Hà Nội
- Hà Nội CN2: Tòa nhà BRC, số 5/76 Trần Thái Tông, phường Nghĩa Đô, Hà Nội
- Hà Nội CN3: Tầng 4, Tháp B1 Roman Plaza, Tố Hữu, phường Xuân Phương, Hà Nội
- Hải Phòng: 16 lô 3B KĐTM Lê Hồng Phong, phường Ngô Quyền, TP. Hải Phòng
- Nghệ An CN1: 23 Nguyễn Phong Sắc, phường Trường Vinh, TP. Vinh, tỉnh Nghệ An
- Nghệ An CN2: 42 Phan Đình Phùng, phường Thành Vinh, TP. Vinh, tỉnh Nghệ An
- Hà Tĩnh CN1: Tầng 6 – Bình Thủy Building, 24A đường Phan Đình Phùng, phường Thành Sen, TP. Hà Tĩnh
- Hà Tĩnh CN2: 570 Đ. Lê Đại Hành, phường Sông Trí, TX. Kỳ Anh, Hà Tĩnh
- Quảng Trị (trước thuộc Quảng Bình): 136 Lý Thường Kiệt, phường Đồng Hới, TP. Đồng Hới, tỉnh Quảng Trị
- Hồ Chí Minh CN1: 142 Võ Văn Tần, phường Xuân Hòa, TP. Hồ Chí Minh
- Hồ Chí Minh CN2: Tầng 9 – 85 Cách Mạng Tháng Tám, phường Bến Thành, TP. Hồ Chí Minh
- CN Tây Nguyên: 181 Ama Khê, Buôn Ma Thuột, Đắk Lắk
