Mẫu nhà ống 3 tầng mặt tiền 4.5m siêu trẻ trung ấn tượng
Nội dung
Mẫu nhà ống 3 tầng mặt tiền 4.5m được thiết kế rất đơn giản nhưng lại vô cùng cuốn hút nhờ sự kết hợp giữa những nét bo cong nhẹ nhàng và sân thượng đầy hoa lá. Mẫu nhà ở phố tối ưu không gian sống cho gia đình với mảng khối thụt vào nhô ra hiện đại. Cùng chiêm ngưỡng các hình ảnh 3D, bản vẽ thiết kế mẫu nhà này ngay bên dưới và liên hệ thietkenhakasai.com tư vấn nếu thích nhé!
Thiết kế nhà phố hiện đại, tinh giản nhưng đầy cuốn hút
Với những điểm nhấn tinh tế ngôi nhà vô cùng nổi bật giữa phố khiến ai đi qua cũng sẽ phải ngước lại ngắm nhìn. Không chỉ là nhà 3 tầng cho sinh hoạt gia đình đây có thể xem như một tác phẩm nghệ thuật giữa phố.
Điểm nhấn cửa vòm sang trọng
Điểm nhấn của ngôi nhà 3 tầng là chiếc cửa vòm sang trọng ở tầng 2. Những đường cong của ô cửa giúp cho ngôi nhà trở nên thanh thoát, mềm mại gợi sự liên tưởng đến các ngôi nhà châu Âu hiện đại. Kết hợp cùng tone màu trắng phối đen và đèn vàng ngôi nhà trở nên vừa sang trọng lại ấm cúng hơn.

Nhà ống 5x20m hiện đại 3 tầng vừa ở vừa kinh doanh siêu tiện nghi
ĐỂ LẠI THÔNG TIN KIẾN TRÚC SƯ KASAI SẼ TƯ VẤN NGAY LẬP TỨC
Nhà phố hiện đại 3 tầng với sân thượng tràn ngập hoa lá
Ở tầng thượng mẫu nhà phố 3 tầng 4.5m được thiết kế mái lam thoáng mát với nhiều kẻ hở để tạo bóng mát và cho cây keo phát triển tự nhiên. Không gian này không chỉ là nơi thư giãn ngắm cảnh mà còn giúp điều hòa cho ngôi nhà thêm mát mẻ. Giúp nhà bê tông cốt thép có sự kết nối với cây cỏ thiên nhiên cực kỳ gần gũi.

Không gian sống hiện đại giữa phố xá nhộn nhịp
Bên trong không gian sống các mảng tường đều được bố trí các nét bo cong nhẹ nhàng. Nội thất sử dụng đều là nội thất tối giản hiện đại mang lại nét sang trọng cho ngôi nhà.








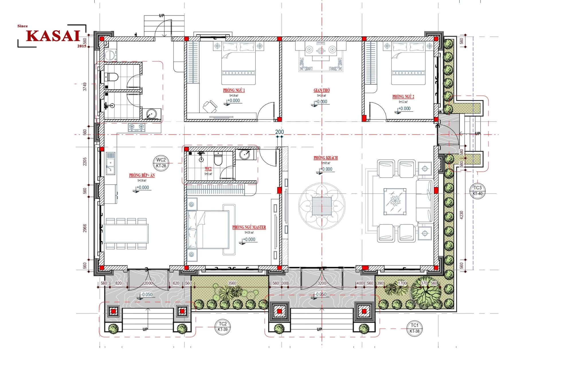
Bản vẽ thiết kế nhà 3 tầng 5x15m tiện nghi, nổi bật giữa phố
Bản vẽ thiết kế nhà ống 3 tầng 4,5 m x15m
Với diện tích 4.5m x15m gia chủ muốn thiết kế nhà có 3 phòng ngủ rộng rãi sinh hoạt. Do đó mà trong ngôi nhà phố này không thiết kế sân trước mà dành diện tích cho phòng khách phía trước sau đó là bếp ăn và cuối nhà phòng ngủ 1. Ở tầng 2 sẽ bố trí 2 phòng ngủ còn lại cho gia đình và tầng 3 sẽ có phòng thờ sân thượng

Thông tin chi tiết mẫu nhà ống 3 tầng 4,5m của KASAI
- Chủ đầu tư: Anh Hùng
- Địa chỉ: Đà Nẵng
- Diện tích : 4,5x15m
- Thiết kế: Công ty TNHH tư vấn thiết kế và xây dựng KASAI
Mẫu nhà ống 3 tầng 4.5m x15m có nét hiện đại, sang trọng và cũng cực gần gũi thiên nhiên, ấm cúng giữa phố có làm bạn cảm thấy thích thú không. Chần chừ gì không liên hệ KASAI ngay hôm nay để được tư vấn thiết kế mẫu nhà đẹp sớm về nhà mới nhé!
Thông tin liên hệ và báo giá
- Liên hệ: 0931393270 – 0972903570
- FACEBOOK: https://www.facebook.com/Ceoluuhonglam/
- FANFAGE: https://www.facebook.com/xaydungkasai
- WEBSITE: https://kasai.com.vn/ – https://thietkenhakasai.com/
- ZALO: 0931393270 – 0972903570
Địa chỉ chi nhánh:
- Đà Nẵng: 62 Xuân Thủy – Cẩm Lệ – Đà Nẵng
- Hà Nội CN1: Số 80 đường Đa Phúc, xã Đa Phúc, thành phố Hà Nội
- Hà Nội CN2: Tòa nhà BRC, số 5/76 Trần Thái Tông, phường Nghĩa Đô, Hà Nội
- Hà Nội CN3: Tầng 4, Tháp B1 Roman Plaza, Tố Hữu, phường Xuân Phương, Hà Nội
- Hải Phòng: 16 lô 3B KĐTM Lê Hồng Phong, phường Ngô Quyền, TP. Hải Phòng
- Nghệ An CN1: 23 Nguyễn Phong Sắc, phường Trường Vinh, TP. Vinh, tỉnh Nghệ An
- Nghệ An CN2: 42 Phan Đình Phùng, phường Thành Vinh, TP. Vinh, tỉnh Nghệ An
- Hà Tĩnh CN1: Tầng 6 – Bình Thủy Building, 24A đường Phan Đình Phùng, phường Thành Sen, TP. Hà Tĩnh
- Hà Tĩnh CN2: 570 Đ. Lê Đại Hành, phường Sông Trí, TX. Kỳ Anh, Hà Tĩnh
- Quảng Trị (trước thuộc Quảng Bình): 136 Lý Thường Kiệt, phường Đồng Hới, TP. Đồng Hới, tỉnh Quảng Trị
- Hồ Chí Minh CN1: 142 Võ Văn Tần, phường Xuân Hòa, TP. Hồ Chí Minh
- Hồ Chí Minh CN2: Tầng 9 – 85 Cách Mạng Tháng Tám, phường Bến Thành, TP. Hồ Chí Minh
- CN Tây Nguyên: 181 Ama Khê, Buôn Ma Thuột, Đắk Lắk

