Nội dung
- 1 Có nên xây nhà 3 tầng chữ L không?
- 2 Các mẫu nhà 3 tầng chữ L đẹp sang gây sốt hiện nay
- 2.1 1. Mẫu nhà chữ l 3 tầng hiện đại
- 2.2 2. Nhà chữ L 3 tầng mái Nhật
- 2.3 3. Mẫu nhà chữ L 3 tầng mái bằng
- 2.4 4. Nhà chữ L 3 tầng mái thái
- 2.5 5. Mẫu nhà chữ L 3 tầng đẹp ở nông thôn
- 2.6 6. Thiết kế nhà chữ l 3 phòng ngủ
- 2.7 7. Nhà chữ L 3 tầng 80m2
- 2.8 8. Mẫu nhà 3 tầng chữ l 100m2
- 2.9 9. Mẫu nhà tân cổ điển chữ l 3 tầng
- 2.10 10. Bản vẽ nhà chữ L 3 tầng điển hình
- 3 Những câu hỏi thường gặp khi xây nhà 3 tầng chữ L
Mẫu nhà 3 tầng chữ L với nhiều phong cách khác nhau dưới đây sẽ giúp bạn có thể dễ dàng tìm được thiết kế mình yêu thích và chọn lựa để dựng xây tổ ấm ngay hôm nay. Top các mẫu nhà chữ L với kiểu mái bằng, mái thái, mái Nhật, hiện đại, tân cổ điển, tối giản chắc chắn sẽ có mẫu nhà bạn cần. Cùng chiêm ngưỡng các mẫu nhà sau đây của KASAI và liên hệ tư vấn nếu phù hợp nhé!

Có nên xây nhà 3 tầng chữ L không?
Có rất nhiều quan niệm khác nhau về nhà chữ L. Nhiều người cho rằng nhà chữ L thông thoáng mát mẻ nhưng cũng có người cho rằng nhà chữ L phạm phong thủy? Vậy có nên xây nhà chữ L 3 tầng không? Trước hết hãy cùng làm rõ ưu điểm và nhược điểm của loại nhà này để hiểu rõ nhé!
Ưu điểm
- Nhà 3 tầng chữ L có khoảng sân trước rộng rãi, sân hông mát mẻ giúp cho gia chủ có thể làm gara, sân vườn, tiểu cảnh, hồ cá theo ý muốn. Đây sẽ là không gian thư giãn giải trí thoải mái cho cả gia đình giữa phố phường nhộn nhịp.
- Với kiểu chữ L nhà 3 tầng thường sẽ được bố trí ban công, sân thượng nhờ đó mà không gian sống luôn thoáng đãng, tràn ngập ánh sáng, gió tự nhiên.
- Nhà chữ L có thể ứng dụng nhiều phong cách kiến trúc khác nhau từ hiện đại, tối giản đến tân cổ điển, địa trung hải, luxury.
- Với những ngôi nhà có diện tích không vuông, nhà tam giác, nhà có góc cạnh thì nhà 3 tầng chữ L giúp cho ngôi nhà được tối ưu diện tích hơn và trông vuông vắn hơn.
Nhược điểm
- Nhà chữ L bị xem là khuyết góc tức không vuông vức, nhiểu quan niệm cho rằng nhà chữ L sẽ ảnh hưởng đến tài lộc và sức khỏe gia chủ. Nhưng đều có thể hóa giải được bằng cách trồng cây xanh, gương hoặc bố trí nội thất hợp lý.
- Nội thất trong nhà khó bố trí theo diện tích dọc và ngang. Cần có kiến trúc sư kinh nghiệm để chọn lựa nội thất phù hợp với diện tích và không gian. Nếu không sẽ trông rất chật hẹp, khó di chuyển, lãng phí nhiều không gian trong nhà.
Như vậy nhà 3 tầng chữ L có rất nhiều đặc điểm mamg đến không gian sống rộng rãi, thoáng đãng và thẩm mỹ trên mặt tiền. Nếu bạn thích một ngôi nhà chữ L đừng chần chừ chọn lựa mẫu ngay dưới đây.
Các mẫu nhà 3 tầng chữ L đẹp sang gây sốt hiện nay
Mỗi ngôi nhà được KASAI thiết kế đều mang trong mình những điểm nhấn khác biệt thể hiện dấu ấn riêng của gia chủ. Cùng khám phá ngay sau đây
1. Mẫu nhà chữ l 3 tầng hiện đại
Một ngôi nhà mang đầy hơi thở hiện đại với thiết kế chuẩn trend bo cong. Điểm nhấn được bố trí ở ban công tầng 2 với lớp tường bo cong cực mềm mại và đầy sự tươi mới. Ngôi nhà cũng được bố trí ban công rộng rãi với lớp cửa kính hiện đại bên trong, mặt ngoài còn ốp gạch và lam gỗ mang đến không gian sang trọng và đầy sự gần gũi.


Thông tin dự án:
- Chủ đầu tư: Anh Gia Huy
- Địa chỉ: Thái Bình (cũ)
- Diện tích: 8x13m
- Thiết kế: Công ty kiến trúc KASAI
ĐỂ LẠI THÔNG TIN KIẾN TRÚC SƯ KASAI SẼ TƯ VẤN NGAY LẬP TỨC
2. Nhà chữ L 3 tầng mái Nhật
Mái Nhật rất phổ biến trong kiểu nhà chữ L 3 tầng vì dễ phối, hài hòa với không gian sống tại Việt Nam. Ngôi nhà thường dùng mái Nhật đa lớp với kiểu dốc thoải dễ thoát nước và chống nắng mưa hiệu quả.

Biệt thự 3 tầng chữ L mái Nhật được thiết kế rất vuông vức, tối giản nhưng lại đầy thu hút. Mảng cửa kính cùng ánh đèn âm trần mang đến không gian cực kỳ sáng thoáng cho tổ ấm của gia chủ.




Thông tin chi tiết dự án
- Chủ đầu tư:Anh Tuyến
- Địa chỉ: Đà Nẵng
- Diện tích: 13x17m
- Quy mô: 3 tầng 600m2
- Thiết kế: Công ty tư vấn thiết kế và xây dựng KASAI
3. Mẫu nhà chữ L 3 tầng mái bằng
Mẫu nhà chữ L 3 tầng với thiết kế mái bằng đầy sự sang trọng và hiện đại với điểm nhấn là đường bo cong ở tầng 2 và dấu khóa son ở tường dọc đứng. Ngôi nhà mang đậm dấu ấn cá nhân của gia chủ thể hiện cho một phong cách đầy nghệ sĩ. Kiểu nhà chữ L giúp cho âm nhạc và ánh sáng được hòa quyện giúp gia chủ thoải mái tận hưởng cuộc sống đầy thi sĩ.



ĐỂ LẠI THÔNG TIN KIẾN TRÚC SƯ KASAI SẼ TƯ VẤN NGAY LẬP TỨC
4. Nhà chữ L 3 tầng mái thái
Kiểu nhà mái Thái khi được phối cùng kiểu chữ L sẽ tạo nên một ngôi nhà vô cùng thoáng đãng và cảm giác rộng rãi hơn. Với thiết kế mái Thái nhỏ nhọn đầy mê hoặc kết hợp cùng phong cách tân cổ điến tối giản mang đến không gian cực sang trọng. Các chi tiết phào chỉ cực tinh tế cùng đường vòm cong ở ban công các tầng thực sự là điểm nhấn nổi bật của ngôi nhà

5. Mẫu nhà chữ L 3 tầng đẹp ở nông thôn
Nếu muốn xây nhà 3 tầng chữ L ở nông thôn bạn có thể tham khảo ngay mẫu nhà đẹp dưới đây. Diện tích rộng rãi có thể thiết kế thoải mái cho không gian sống tận hưởng không khí trong lành và đầy sự nghỉ dưỡng.
Ngôi nhà sử dụng phong cách thiết kế hiện đại tối giản với những đường nét vuông vức, mạnh mẽ nhưng cũng đầy sự sang trọng. Sự kết hợp giữa cửa kính, bê tông cùng mái Nhật đã tạo nên một công trình cao lớn, đồ sộ nhưng cũng cực kỳ gần gũi và ấm cúng giữa không gian núi non cây cảnh.




Thông tin dự án
- Chủ đầu tư: Anh Đức
- Địa chỉ: Quảng Ngãi
- Diện tích: 18x16m
- Thiết kế: Công ty tư vấn thiết kế và xây dựng KASAI
6. Thiết kế nhà chữ l 3 phòng ngủ
Bạn muốn một ngôi nhà có 3 phòng ngủ được thiết kế theo kiểu nhà chữ L 3 tầng đừng bỏ qua mẫu nhà dưới đây của KASAI. Đây là kiểu nhà phố vuông vức và gọn gàng đầy sự hiện đại và trẻ trung. Với tone màu trắng phối cam nhạt cùng họa tiết lá cây giữa nhà mang đến cảm giác rất tươi mới và đầy sự hiện đại.



Thông tin dự án
- Chủ đầu tư: Anh Quý
- Địa chỉ: Nghệ An
- Diện tích: 7,5×13,8m
- Thiết kế: Công ty TNHH KASAI
7. Nhà chữ L 3 tầng 80m2
Diện tích đất nhỏ chỉ 80m2 có xây nhà chữ L được không? Hoàn toàn được nên đừng lo lắng. Mẫu nhà đẹp dưới đây được KASAI thiết kế cho gia chủ với diện tích nhỏ gọn nhưng vẫn vô cùng vuông vức và đầy sự thu hút
Ngôi nhà 3 tầng chữ L 80m2 được thiết kế theo phong cách tân cổ điển với điểm nhấn phào chỉ, vòm cong cùng lan can hoa văn cực kỳ thẩm mỹ. Ngôi nhà vô cùng nổi bật giữa phố mang đến cảm giác rất sang trọng/



Thông tin dự án
- Dự án: B’s House.
- Địa chỉ: Thanh Hóa.
- Diện tích đất: 7×9.
- Đơn vị thiết kế: Công ty tư vấn thiết kế và xây dựng KASAI.
8. Mẫu nhà 3 tầng chữ l 100m2
Mẫu nhà chữ L 3 tầng diện tích 100m2 được KASAI thiết kế cực kỳ vuông vức tạo cảm giác rất rộng rãi và thoáng đãng. Ngôi nhà vẫn rất kín đáo nhờ kiểu thiết kế tường bê tông dài ở mặt phố và vẫn mát mẻ nhờ phía trong là hệ cửa kính. Điểm nhấn ngôi nhà là ở tầng thượng với kiểu mái che và lam gỗ như một khu vườn nhỏ cho gia chủ thư giãn.




Thông tin dự án
- Chủ đầu tư: Anh Trung
- Địa chỉ: Nghệ An
- Diện tích: 10×10
- Thiết kế: Công tư vấn thiết kế và xây dựng KASAI
9. Mẫu nhà tân cổ điển chữ l 3 tầng
Phong cách tân cổ điển thường được sử dụng cho những ngôi nhà biệt thự rộng lớn thể hiện sự sang trọng và đẳng cấp của gia chủ. Mẫu nhà tân cổ điển chữ L 3 tầng càng giúp cho không gian sống trở nên hiện đại, cao cấp hơn. Ngôi nhà nổi bật với ban công vòm cong giữa nhà và hệ mái Thái rất hiện đại. Sân thượng còn được thiết kế kiểu mái che ô bàn cờ là nơi thư giãn, giải trí cho gia chủ.

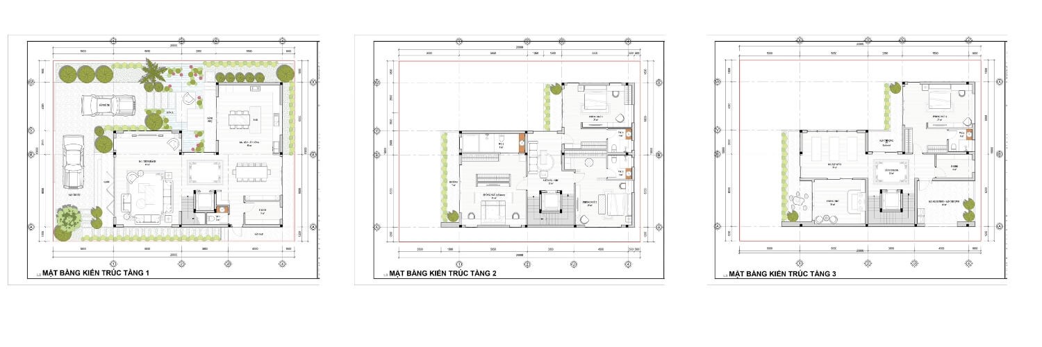
10. Bản vẽ nhà chữ L 3 tầng điển hình
Ngôi nhà 3 tầng chữ L thường được thiết kế với khoản sân trước là gara hoặc sân vườn. Tầng 1 là khu vực cho phòng khách, bếp WC; ở tầng 2 sẽ là khu vực nghỉ ngơi chính của gia đình với 2-4 phòng ngủ còn tầng 3 sẽ là nơi thờ cúng, sân phơi.




Thông tin dự án
- Dự án: Y’s House
- Địa chỉ: Hà Nội
- Diện tích đất: 7x18m
- Thiết kế: Công ty TNHH xây dựng KASAI
Những câu hỏi thường gặp khi xây nhà 3 tầng chữ L
Xây nhà 3 tầng chữ L bao nhiêu tiền?
Tùy diện tích của ngôi nhà mà sẽ có chi phí xây dựng khác nhau. Hiện nay KASAI đang có dịch vụ xây nhà trọn gói với mức giá từ 6.500.000đ/m2 bạn có thể liên hệ để được biết thêm chi tiết.
ĐỂ LẠI THÔNG TIN KIẾN TRÚC SƯ KASAI SẼ TƯ VẤN NGAY LẬP TỨC
Nhà chữ L có tốn phí hơn nhà vuông?
Thông thường nhà chữ L sẽ không tốn phí hơn nhà vuông bao nhiêu. Chủ yếu là từ dầm, kết cấu, nội thất cần đảm bảo sự hài hòa và bền chắc.
Trên đây là những mấu nhà chữ L 3 tầng đang được yêu thích hiện nay. Nếu bạn cảm thấy phù hợp với ý định xây dựng tổ ấm của mình đừng chần chừ liên hệ KASAI tư vấn nhé!
Thông tin liên hệ và báo giá
- Liên hệ: 0931393270 – 0972903570
- FACEBOOK: https://www.facebook.com/Ceoluuhonglam/
- FANFAGE: https://www.facebook.com/xaydungkasai
- WEBSITE: https://kasai.com.vn/ – https://thietkenhakasai.com/
- ZALO: 0931393270 – 0972903570
Địa chỉ chi nhánh:
- Đà Nẵng: 62 Xuân Thủy – Cẩm Lệ – Đà Nẵng
- Hà Nội CN1: Số 80 đường Đa Phúc, xã Đa Phúc, thành phố Hà Nội
- Hà Nội CN2: Tòa nhà BRC, số 5/76 Trần Thái Tông, phường Nghĩa Đô, Hà Nội
- Hà Nội CN3: Tầng 4, Tháp B1 Roman Plaza, Tố Hữu, phường Xuân Phương, Hà Nội
- Hải Phòng: 16 lô 3B KĐTM Lê Hồng Phong, phường Ngô Quyền, TP. Hải Phòng
- Nghệ An CN1: 23 Nguyễn Phong Sắc, phường Trường Vinh, TP. Vinh, tỉnh Nghệ An
- Nghệ An CN2: 42 Phan Đình Phùng, phường Thành Vinh, TP. Vinh, tỉnh Nghệ An
- Hà Tĩnh CN1: Tầng 6 – Bình Thủy Building, 24A đường Phan Đình Phùng, phường Thành Sen, TP. Hà Tĩnh
- Hà Tĩnh CN2: 570 Đ. Lê Đại Hành, phường Sông Trí, TX. Kỳ Anh, Hà Tĩnh
- Quảng Trị (trước thuộc Quảng Bình): 136 Lý Thường Kiệt, phường Đồng Hới, TP. Đồng Hới, tỉnh Quảng Trị
- Hồ Chí Minh CN1: 142 Võ Văn Tần, phường Xuân Hòa, TP. Hồ Chí Minh
- Hồ Chí Minh CN2: Tầng 9 – 85 Cách Mạng Tháng Tám, phường Bến Thành, TP. Hồ Chí Minh
- CN Tây Nguyên: 181 Ama Khê, Buôn Ma Thuột, Đắk Lắk
